Inspiratsioon ja kontaktid

Kesktolmuimeja süsteemi planeerimine ei ole keeruline ega kulukas

Taavi Tuur
Kaasatud ekspert:
Taavi Tuur
Kummutame müüdi, et kesktolmuimeja süsteemi paigaldamine on keeruline ja kallis. Kui peremees saab hakkama lihtsamate torutöödega, siis saab ta hakkama ka kesktolmuimeja süsteemi torustiku ja seadmete ise paigaldamisega. Paigalduse juhendid on olemas.
Kummutame müüdi, et kesktolmuimeja süsteemi paigaldamine on keeruline ja kallis. Kui peremees saab hakkama lihtsamate torutöödega, siis saab ta hakkama ka kesktolmuimeja süsteemi torustiku ja seadmete ise paigaldamisega. Paigalduse juhendid on olemas.

Kui planeerid uut kodu, renoveerid olemasolevat või vajad lihtsalt uut efektiivsemat tolmuimeja lahendust, siis peiduvoolikuga kesktolmuimeja on kindel favoriit, mida kaaluda. Ei ole välja mõeldud ühtegi tõhusamat viisi. See on efektiivne, äärmiselt vaikne ja ei tekita õhku tolmuosakesi (eriti oluline allergikutele), kuna mustus imetakse vooliku kaudu sisse ja suunatakse torustiku kaudu välja. Samuti saab süsteemiga ühildada robottolmuimeja ning mitmed teised kiirkoristusseadmed.

Et teemat paremini mõista, jagab kesktolmuimeja süsteemide maaletooja-ekspert-tootejuht Taavi Tuur soovitusi planeerimise alustamiseks, selgitab hinna kujunemise teemat ning tutvustab seadmete süsteemiga ühildamise võimalusi.

Müüt! Keeruline paigaldada ja kallis

Kummutame müüdi, et kesktolmuimeja süsteemi paigaldamine on keeruline ja kallis. Kui peremees saab hakkama lihtsamate torutöödega, siis saab ta hakkama ka kesktolmuimeja süsteemi torustiku ja seadmete ise paigaldamisega. Paigalduse juhendid on olemas.

Võrreldes väärtusega, kui palju mugavamaks see meie koristuspäeva teeb, on hinna teema suhteline ja mõistlik. Täislahenduse hind umbes 200 ruutmeetri suuruse 2-korruselise eramaja puhul on orienteeruvalt 1500-2500 eurot. Hind sõltub sellest, kas tellitakse ainult torustik, seadmed ja tarvikud ning kas koos paigaldusega või ilma. Otsusta lihtsalt ära, mis on sinu jaoks mõistlik!

Seadmete ja torustiku hindu saab ka e-poes tooteid ostukorvi pannes teada. Kõike ei pea korraga tegema. Tehke etappide viisi. Näiteks piisab, kui torustik õigel ajal ära vedada, siis on valmidus olemas. Süsteemi enda ostmist saab edasi lükata, kui see tundub mõistlikum.

Planeerimisega saab ise algust teha: selgita välja enda vajadused

Nagu ikka kogu kodu hõlmavate lahendustega, tuleks ideaalis planeerimisega alustada projekteerimisega algjärgus. Just nii saab kõige efektiivsema ja optimaalsema lahenduse ning kokkuvõttes ka rahalise võidu. Ümberprojekteerimine on alati keerulisem ja kulukam.

Isegi kui kaasad planeerimiseks spetsialisti, on hea teada täpselt, millised on sinu enda vajadused ja nägemused paigutusest. Seega on kõige lihtsam, kui maja joonis või reaalsed ruumid on olemas. Võta ruumis 12 meetri pikkune nöörijupp (peiduvooliku lahenduse puhul vooliku pikkus) ja liigu sellega ringi. Voolik peab saama liikuda mööbli ümber, mitte üle selle, näiteks magamistoas ümber voodi. Voolik võiks ulatuda igale poole ja olema meetri võrra pikem. Lisapikkust annab teleskoopvars, mis on 1 meetri pikkune.  Mõtle ka välja, kus on kõige optimaalsemad voolikupesade asukohad. Voolikupesad peaksid olema kergesti ligipääsetavates kohtades, nagu esikus ja koridorides.

Tõmbepesa kõrgus jääb tavaliselt vahemikku 700 – 1000 mm põrandast. Kõrguse valikul tuleks lähtutakse põhimõttest, et voolikut pesast välja tõmmates ei oleks vaja kummarduda ega tõsta kätt liiga kõrgele.
Tõmbepesa kõrgus jääb tavaliselt vahemikku 700 – 1000 mm põrandast. Kõrguse valikul tuleks lähtutakse põhimõttest, et voolikut pesast välja tõmmates ei oleks vaja kummarduda ega tõsta kätt liiga kõrgele.

 

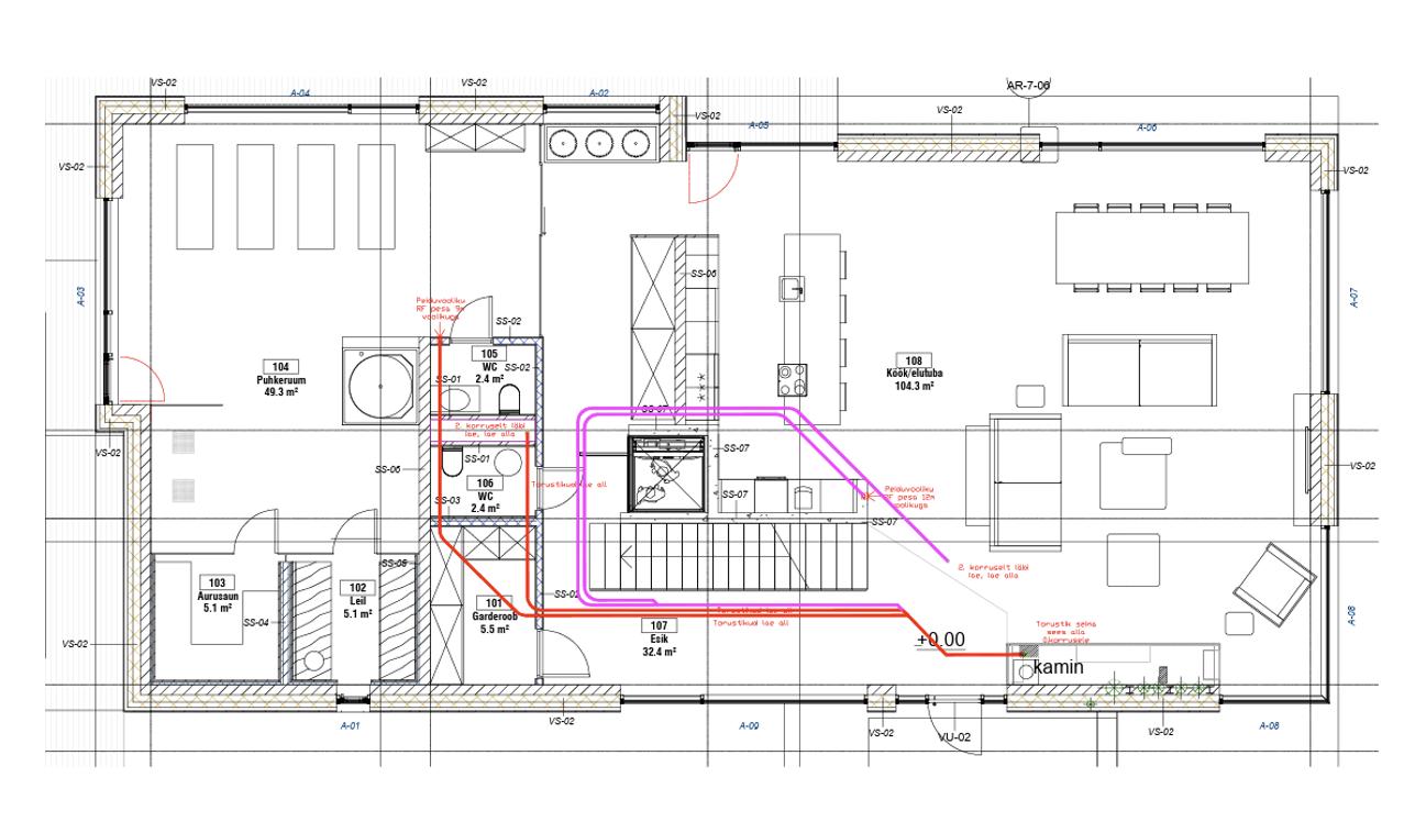
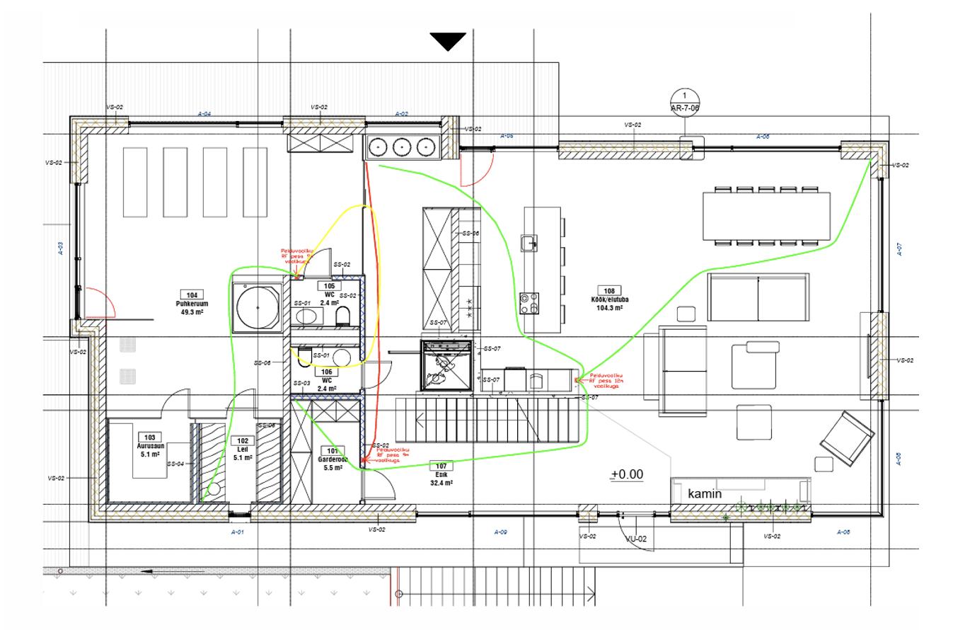
Vaata planeerimist joonistel:

Joonis 2. Roheline joon tähistab eramaja 1. korruse plaanil kesktolmuimeja süsteemi peiduvooliku liikumist ruumides. 1 Joonis 2. Lilla joon tähistab eramaja 1. korruse plaanil lae alla karkassi sisse planeeritud kesktolmuimeja süsteemi torustikku.  2

Torustik on kõige parem paigaldada põranda sisse või siis lae alla karkassi sisse. 

Tõmbepesa saab paigaldada nii kivi kui ka karkass-seintesse, aga peab arvestama, et see oleks vähemalt 100 mm paksusega, et pesa sügavuselt ära mahuks.
Tõmbepesa saab paigaldada nii kivi kui ka karkass-seintesse, aga peab arvestama, et see oleks vähemalt 100 mm paksusega, et pesa sügavuselt ära mahuks.

Peiduvoolik teeb kasutamise mugavaks

Kõige aktuaalsemad on täna kesktolmuimeja peiduvooliku lahendused, kus toru tõmmatakse peale kasutust vaakumiga süsteemi tagasi, ei ole vaja kerida. Selle lahenduse eripäraks on see, et iga pesa taga peab olema sama palju autonoomset toru kui väljatõmmatavat voolikut ennast. Peiduvooliku saab teisega alla viia kokku alles siis, kui voolik on lõppenud. Kolmikuid pole võimalik panna. Saad panna alles siis, kui vooliku pikkused on lõppenud. Kahjuks ei ole võimalik olemasolevasse (tava, mitte peiduvoolik) kesktolmuimeja tavasüsteemi peiduvoolikut panna. Põlved on erinevad. Selleks on vaja teha juurde eraldi liinid, mida muidugi ka tehakse. Sest voolik, mis ise süsteemi tagasi liigub, on väga mugav.

Tasub kaaluda ka kiirkoristusseadmete ühildamist süsteemiga

Planeerimisel tasub kaaluda erinevaid lisavõimalusi, näiteks kiirkoristusseadmete lisamist, nagu Vroom seade kööki või kesktolmuimejaga ühildatav robottolmuimeja lahendus.Selle tarbeks tuleks planeerimisel igaks juhuks köögimööbli alla ja majandusruumi tavatõmbepesad välja tuua, et võib-olla on huvi edaspidi kasutada.

 

Kesktolmuimeja.eeKõik kesktolmuimeja süsteemidest

Beam Baltic OÜ on Eesti kõige pikaaegseim kesktolmuimejaid, nende vooliku- ja mugavuslahendusi ning nutikaid kodudesse mõeldud koristuslahendusi maaletoov ettevõte.